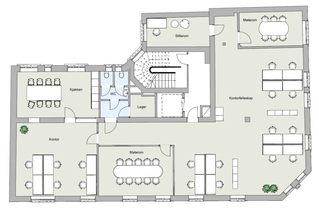
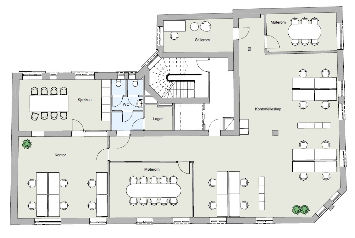
Se hvordan kontoret kan bil ferdig innredet. Her har vi fått hjelp av AI
- Hjem
- /
- Ledige næringslokaler i Trondheim
- /
- Kontorlokaler med hjørnebeliggenhet
m2
Ledige kontorlokaler i 2. etg. Lokalene har vinduer fra tre sider, der vinduene har utsikt mot fellesarealet inne i Olavskvartalet, mot Nidelven/Bakke bru og mot Olav Tryggvasons gate.
Dagens løsning inneholder
Et stort rom for åpent kontorlandskap, ca 115m2
Et stort møterom og to mindre møterom/stille rom
Et mindre rom for åpent kontorlandskap/sosial sone, ca 40m2
Et spiserom med kjøkken
Toalett og garderober:
Her er det mulighet for endringer og tilpasninger.
Ved innkomsten til Midtbyen
Bygget ligger på hjørnet Olav Tryggvasons gate og Kjøpmannsgata, ved Bakke bro. Det er intern adkomst fra/til Olavskvartalet med shopping og kafèr. Det er også inngang fra gateplan i Kjøpmannsgata.
Kontakt oss gjerne for spørsmål eller om dere ønsker
en uforpliktende befaring.
Koteng Eiendom AS
Travbanevegen 2
7061 Trondheim
Sentralbord: 73 80 22 20
Vakt telefon: 73 80 22 55
koteng@koteng.no
Vi investerer og forvalter næringseiendom. Vår eiendomsportefølje består av 270.000m² med kontor, produksjon, lager og butikklokaler. Total leieinntekt på 340 mill. Eiendommene eies helt eller delvis av Koteng Holding.
Vårt verdigrunnlag er basert på arbeidsglede, redelighet, kompetanse og langsiktighet.
| Cookie | Varighet | Beskrivelse |
|---|---|---|
| cookielawinfo-checkbox-analytics | 11 months | This cookie is set by GDPR Cookie Consent plugin. The cookie is used to store the user consent for the cookies in the category "Analytics". |
| cookielawinfo-checkbox-functional | 11 months | The cookie is set by GDPR cookie consent to record the user consent for the cookies in the category "Functional". |
| cookielawinfo-checkbox-necessary | 11 months | This cookie is set by GDPR Cookie Consent plugin. The cookies is used to store the user consent for the cookies in the category "Necessary". |
| cookielawinfo-checkbox-others | 11 months | This cookie is set by GDPR Cookie Consent plugin. The cookie is used to store the user consent for the cookies in the category "Other. |
| cookielawinfo-checkbox-performance | 11 months | This cookie is set by GDPR Cookie Consent plugin. The cookie is used to store the user consent for the cookies in the category "Performance". |
| viewed_cookie_policy | 11 months | The cookie is set by the GDPR Cookie Consent plugin and is used to store whether or not user has consented to the use of cookies. It does not store any personal data. |