
Ingvald ystgaardsvei 15 oscar stoltenberg 9
Cellekontorer i ledig areal i andre etasje. Foto Oscar Stoltenberg

Ingvald ystgaardsvei 15 oscar stoltenberg
Lite møterom i ledig areal andre etasje. Foto Oscar Stoltenberg
m2
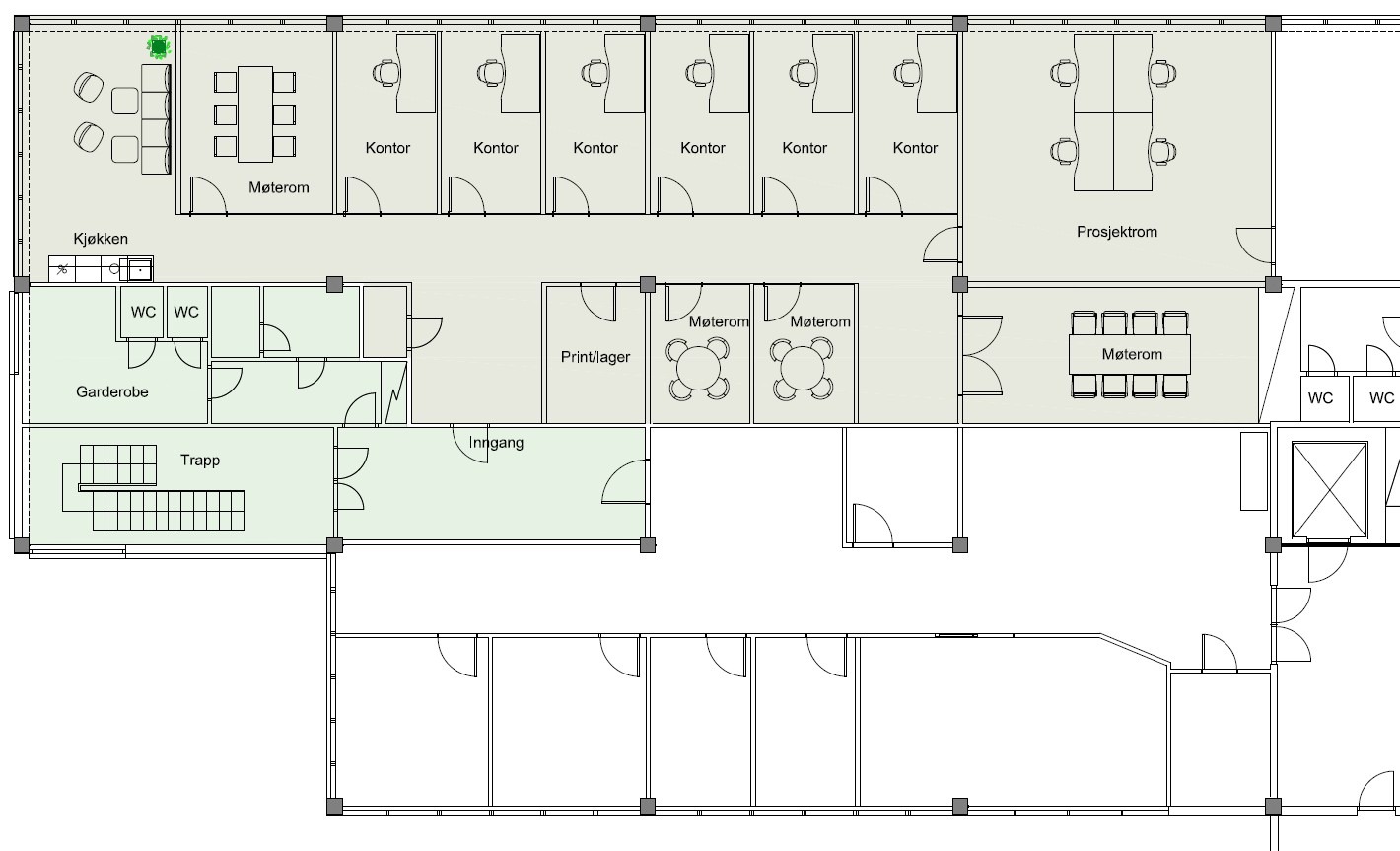
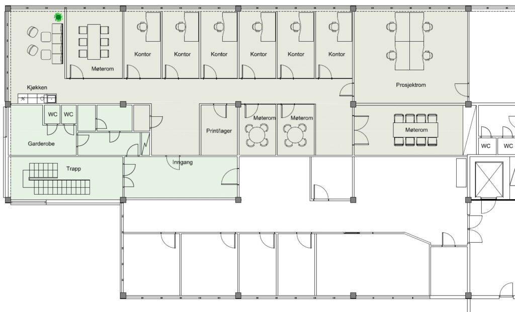
Det ledige lokalet i andre etasje har idag cellekontorer, et stort og et lite møterom. Parkettgulv og hvitmalte vegger.
Beliggenhet
Tunga næringsområde har etterhvert etablert seg med flere kontorbygg og forretningsbygg som f.eks IKEA og Skeidar. Det er lett adkomst via omkjøringsveien, som er hovedforbindelsen mellom syd og nord i Trondheim. 10 minutter kjøring fra Trondheim sentrum.
Bærekraft
Bygget ble i 2017 oppgradert til lavenergibygg. I 2021 ble det montert solcelleanlegg, og supplert med ytterligere energitiltak som varmepumper i 2025. Bygget har idag energiklasse A.
Fasiliteter

Cellekontorer i ledig areal i andre etasje. Foto Oscar Stoltenberg

Lite møterom i ledig areal andre etasje. Foto Oscar Stoltenberg
Kontakt oss gjerne for spørsmål eller om dere ønsker
en uforpliktende befaring.
Koteng Eiendom AS
Travbanevegen 2
7061 Trondheim
Sentralbord: 73 80 22 20
Vakt telefon: 73 80 22 55
koteng@koteng.no
Vi investerer og forvalter næringseiendom. Vår eiendomsportefølje består av 270.000m² med kontor, produksjon, lager og butikklokaler. Total leieinntekt på 340 mill. Eiendommene eies helt eller delvis av Koteng Holding.
Vårt verdigrunnlag er basert på arbeidsglede, redelighet, kompetanse og langsiktighet.
| Cookie | Varighet | Beskrivelse |
|---|---|---|
| cookielawinfo-checkbox-analytics | 11 months | This cookie is set by GDPR Cookie Consent plugin. The cookie is used to store the user consent for the cookies in the category "Analytics". |
| cookielawinfo-checkbox-functional | 11 months | The cookie is set by GDPR cookie consent to record the user consent for the cookies in the category "Functional". |
| cookielawinfo-checkbox-necessary | 11 months | This cookie is set by GDPR Cookie Consent plugin. The cookies is used to store the user consent for the cookies in the category "Necessary". |
| cookielawinfo-checkbox-others | 11 months | This cookie is set by GDPR Cookie Consent plugin. The cookie is used to store the user consent for the cookies in the category "Other. |
| cookielawinfo-checkbox-performance | 11 months | This cookie is set by GDPR Cookie Consent plugin. The cookie is used to store the user consent for the cookies in the category "Performance". |
| viewed_cookie_policy | 11 months | The cookie is set by the GDPR Cookie Consent plugin and is used to store whether or not user has consented to the use of cookies. It does not store any personal data. |